Добро пожаловать на http://vipplan.ru

Випплан Северодвинск - это тысячи проектов домов в нашем каталоге!

Вы всегда сможете найти для себя проект дома вашей мечты! Даже если этого не случилось, мы готовы в любую минуту предложить проект индивидуального дома.

Забыли пароль?
Вы еще не регистрировались?

Перейдите по ссылке ниже на страницу регистрации.

Регистрация...

Внимание!!!

В проектную документацию могут быть внесены изменения любой сложности, в соответствии в Вашими пожеланиями!

Полезные статьи

Утепление стен дома изнутри

Утепление стен дома изнутри – это не правильный метод теплоизоляции помещения и используется в самом крайнем случае, когда других вариантов уже не остается. Как правило, утепление стен изнутри выполняется по незнанию или вынужденно, поскольку, теплоизоляция внутренних помещений дома другим способом невозможна. Вопросы теплоизоляции необходимо решать на стадии проектирования дома или коттеджа, а не тогда когда дом уже построен и приходится исправлять совершенные ошибки по факту....

Виды бассейнов

В наше время, строительство бассейна на территории своего участка, не такая уж и роскошь. Выбор видов и стилей бассейна, на сегодняшний день, очень большой....

Проекты домов и коттеджей > Каталог проектов домов > Проект одноэтажного дома с мансардой Vg2275

Проект одноэтажного дома с мансардой Vg2275

Проект одноэтажного дома с мансардой
Зарегистрируйтесь

Проект № Vg2275


Техническое описание
Общая площадь: 207.35 м2
Жилая площадь: 110.2 м2
Высота здания: 8.73 м
Размеры дома: 11.3м×17.3м
Кол-во комнат: 6
Цокольный этаж: нет
Гараж: нет
Мансарда: есть

Kонструкция
Фундамент: Ленточный, блоки ФБС
Перекрытия: Деревянные балки
Материал стен: Бетонные блоки

Архитектурный раздел
Конструктивный раздел
АР+КР - 64 000 (Со скидкой 20%)
Проект индивидуального двухэтажного жилого дома с размерами здания 11,30 x 17,30 м. Наружная отделка здания –теплоблоки. Фундамент –ленточный из блоков ФБС. Наружные стены - теплоблоки. Внутренние стены - газобетонные блоки. Перегородки – газобетонные блоки, ГКЛ на металлическом каркасе. Пол первого этажа - сборные ж/б плиты. Межэтажное перекрытие - деревянные балки. Крыша двухскатная. Кровля – металлочерепица. Окна — металлопластиковые
Генплан застройки участка / Паспорт проекта 7000 руб / 10000 руб
Инженерный раздел (полный) 103500 руб
Смета на строительство 51750 руб
Теплотехнический расчет материалов стен Бесплатно
Стоимость проекта со незначительнми изменениями 74800 руб
Стоимость проекта со средними изменениями* 90400 руб
Стоимость проекта со значительными изменениями** 94500 руб

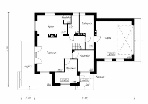
План первого этажа


Прихожая — 9,58 кв м
Гостиная — 28,92 кв м
Кухня — 13,22 кв м
Кладовая — 1,37 кв м
С/у — 4,2 кв м
Гостевая — 9,12 кв м
Бойлерная — 9,34 кв м
Гараж — 31,83 кв м

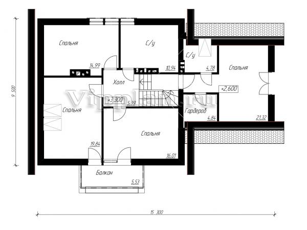
План мансардного этажа


Холл — 5,39 кв м
Спальня — 16,01 кв м
Спальня — 19,84 кв м
Спальня — 14,99 кв м
С/у — 10,94 кв м
Спальня — 21,32 кв м
С/у — 4,78 кв м
Гардероб — 4,84 кв м
Проект одноэтажного дома с мансардой Проект одноэтажного дома с мансардой Проект одноэтажного дома с мансардой Проект одноэтажного дома с мансардой

Модификации проектов

Внесение изменений и привязка к участку строительства

В любой из проектов от компании VIPplan - Северодвинск по вашему желанию могут быть внесены изменения в материалы стен, материалы наружной отделки дома, а также будет произведена адаптация проекта под конкретный регион строительства (с учетом грунтов региона, геологических особенностей вашего участка и местных климатических условий) - БЕСПЛАТНО !!! (кроме проектов со скидкой и проектов наших партнеров).

Любой из проектов, размещенных на сайте severodvinsk.vipplan.ru мы можем выполнить из требуемых вам строительных материалов: ячеистый бетон (газобетон, пеноблок), керамоблок, кирпич, шлакоблок, бетонный блок, дерево (брус, клееный брус), каркасная технология (деревянный каркас, металлокаркас (ЛСТК)).

Фасад дома и его наружную отделку так же возможно выполнить с применением различных облицовочных материалов: структурной штукатурки, (с утеплителем и без), сайдингом (пластиковый или металлосайдинг), фиброплитами, кирпича.

 
6 Избранные
проекты

Доставка проектов по России: Москва (Московская область), Санкт-Петербург (Ленинградская область), Краснодар, Ростов-на-Дону, Ставрополь, Сочи, Волгоград, Новосибирск, Белгород, Брянск, Воронеж, Саратов, Хабаровск, Астрахань, Нальчик, Владикавказ, Екатеринбург, Тюмень, Самара, Нижний Новгород, Казань, Пермь, Уфа, Челябинск, Красноярск, Ханты-Мансийск, Иркутск, Курган, Оренбург, Омск, Томск, Барнаул, Новокузнецк, Кемерово, Абакан, Чита, Якутск, Южно-Сахалинск, Петропавловск-Камчатский и страны ближнего зарубежья: Белоруссия, Украина, Казахстан